22 Wildwood Terrace, Ringwood, New Jersey 07456
$550,000.00
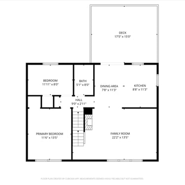
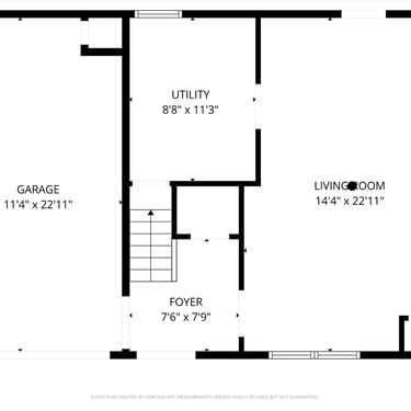
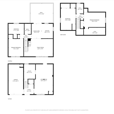
If you’ve been looking for a home that offers both comfort and flexibility, this is one you won’t want to miss. The first level offers a bright living room with a large window that fills the space with natural light, along with two bedrooms—one currently used as a home office—and a full bath. The eat-in kitchen is also located on this level and features sliders that lead directly to the deck, making everyday living and entertaining seamless. Upstairs, you’ll find two additional bedrooms, including a spacious walk-in closet. Even better, the closet already has plumbing in place, offering a great opportunity to easily add a second bathroom. The lower level provides additional living space with a comfortable family room, laundry area, and access to the garage. Step outside to a spacious backyard perfect for relaxing or entertaining, complete with a deck that extends your living space outdoors. A one-car garage adds convenience, while the overall layout offers both charm and practical living. A home with this kind of potential and versatility doesn’t come along often—move right in! Membership to Skyline Lake is optional so you can take part in swimming, boating and the clubhouse. Welcome Home! (seller has NJ real estate license)
This home is listed by Nanci Lieneck
Managing Broker of New Beginnings Realty Solutions
Get My New Book, Just Released
The Ultimate Guide to Buying a Home in New Jersey
The Ultimate Guide to Buying a Home in New Jersey is available now at njhomebuyerbook.com — including the digital version, supplemental worksheets, checklists, and buyer strategy guides.
































